Fluchtraum Österreich
forum empfiehlt, 16.11.2015
Wohin man momentan auch sieht, ob Fernsehen, Printmedien oder Social Media, das Thema Asyl ist überall präsent. Jeder und jede hat eine Meinung – oft genug eine, die zum Erbrechen reizt. Doch neben Fremdenfeindlichkeit und Rassismus keimen auch Nächstenliebe und Hilfsbereitschaft.
Die Frage, die sich Raumschaffende heute stellen sollten, ist, wie sie sich aus der Kompetenz ihrer Professionen heraus nützlich machen können. Ein erster Schritt kann sein, Migration nicht als Problem zu betrachten, sondern als das was es ist, die grundsätzliche Voraussetzung für städtische Gesellschaften. Oder kennt irgendjemand eine Stadt, die ohne Wanderung entstanden wäre? Eine Stadt, die existieren könnte, ohne dass neue Einflüsse verknöcherte Gefüge erneuern und auffrischen?
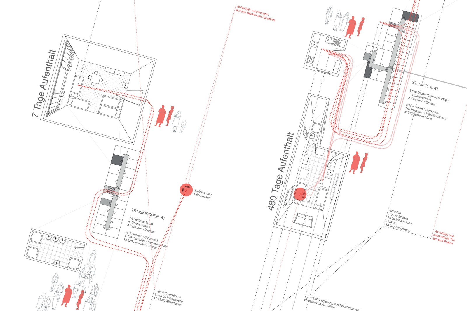
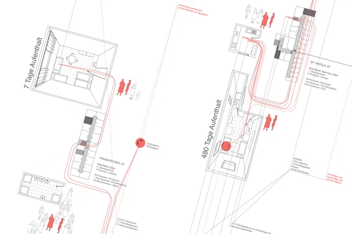
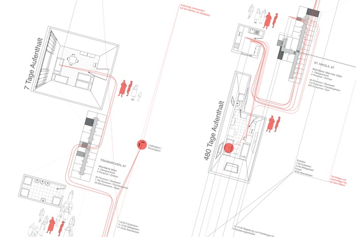
Als Basis dafür hilft fundiertes Wissen, wie es beispielsweise für das von Nina Kolowratnik und Johannes Pointl betreute Projekt „Fluchtraum Österreich“ recherchiert wurde. Publiziert ist die Arbeit in der aktuellen Ausgabe von „asyl aktuell“ (2.2015). Die dazugehörige Ausstellung wird in den kommenden Monaten durch Österreich wandern.
Text von Franz Koppelstätter für das afo architekturforum oberösterreich